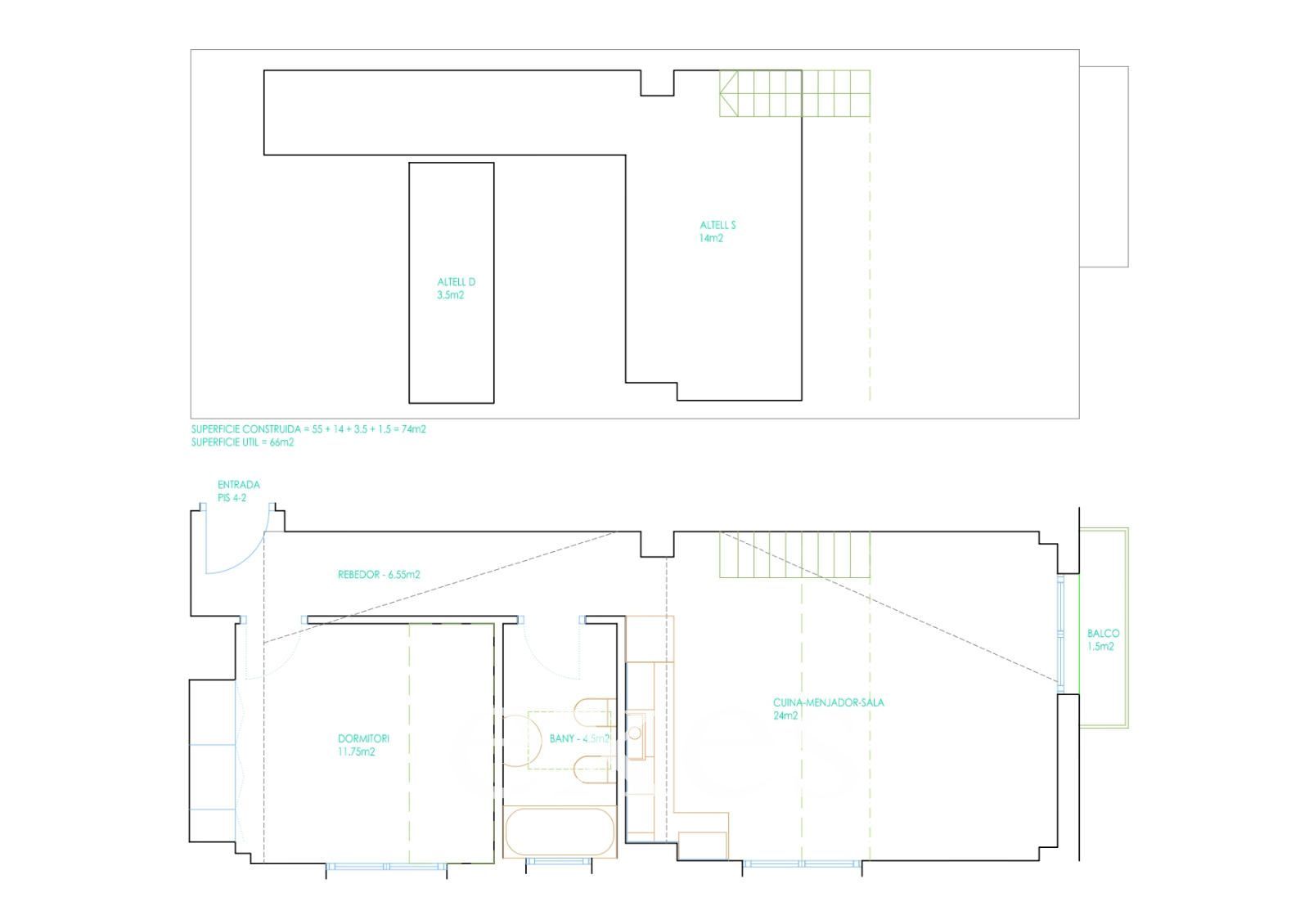
Es lloga espectacular dúplex situat al centre de La Massana, una de les zones més demandades del Principat d’Andorra, amb tots els serveis a peu de carrer com comerços, transport públic, escoles i zones d’oci. L’habitatge té una superfície de 74 m² i es troba en un edifici modern amb ascensor, que garanteix comoditat i fàcil accés. Disposa d’aparcament inclòs en el preu, traster i balcó, aportant un gran valor afegit i més comoditat en el dia a dia. El dúplex ofereix espais amplis, funcionals i molt lluminosos, amb una distribució pràctica que s’adapta perfectament a les necessitats actuals. És ideal per a una persona o parella que busqui confort, qualitat de vida i una ubicació privilegiada al centre. Una excel·lent oportunitat de lloguer en una zona cèntrica, tranquil·la i molt ben comunicada dins del país.